本文约7900字,约需要您十分钟读完,欢迎留下想法一起讨论研究。

目录
第一节:序
第二节:相关术语
第三节:吊顶高度
第四节:吊顶形式
第五节:吊顶材料
第六节:吊顶末端点位
第七节:吊顶设计的技术要点
第八节:吊顶设计思路

第一节:序
吊顶又称天棚、天花,指装饰完成以后的顶面,不仅承载着空间光环境、暖通、湿热、给排水、电气、声学、消防、安防、影音、信息等系统功能设备,还承载着吊门、隔音等装修构建,也抒发着空间的情感氛围,对空间的完整性、美观性、功能性、感知性起着至关重要的作用。
相关建筑设计规范对吊顶的要求及定义:
第二节:相关术语层高:建筑行业中常指建筑层高,既楼板中线之间高度,或上层楼板面到下层楼板面、上层楼板底到下层楼板底之间的高度。装修行业中的层高,常指商城楼板顶面到下层楼板底面的高度,既毛坯净高。
梁高:建筑行业中常指上层楼板面到梁底的高度,包含楼板厚度。装修行业中梁高常指梁底到楼板底的高度,不包含楼板厚度。
水平面:既±0,有建筑正负零、结构正负零、装修正负零,中间的差值由工艺设计决定。
绝对高度:既高处与低处之间的差值。
相对高度:既相对于某一点的高度,一般参照水平面高度。
高度:通常指本专业(行业)的相对高度。
净高:装饰完成地面和顶面之间的高度。
标高:既高度标注,相对于本专业水平面的高度。

吊顶高度对空间高度起决定性作用。
1、有人员正常活动的区域净高不应低于2.m。
《【民用建筑设计统一标准】GB50352-2019》相关规定:
2、住宅层高不宜低于2.8m,
①卧室、起居室(厅)的室内净高不应低于2.40m,局部净高不应低于2.10m且小于使用面积的三分之1/3;
②坡屋顶内空间作卧室、起居室(厅)时,至少有1/2的使用面积的室内净高不应低于2.10m。
③厨房、卫生间的室内净高不应低于2.20m,厨房、卫生间内排水横管下表面与楼面、地面净距不得低于1.90m且不得影响门、窗扇开启。
《【住宅设计规范】GB50096-2011》相关规定:

3.自行车库、设备用房净高不应低于2.0m,私家车库净高不应低于2.2m
《【住宅设计规范】GB50096-2011》相关规定:

4.其他功能形空间的高度,要满足功能性需求及现场结构情况
①店铺高度通常3.;
②私家车库高度通常2.2m;但是车库通道高度要2.8m,要考虑垃圾车出入以及家具车出入(一般床垫等大型物件走地下室比较方便),还要考虑地面减震带、喷淋对空高的影响;如果有其他需求,比如卡车、消防车、货车等,要根据实际情况设计。
5.对于高度过低而无法改变的情况,影响通行时采取顶面防撞措施。
6.高度影响了空间的利用率以及建造成本,也塑造了空间的氛围形象,展示了空间属性。有的空间需要高大开阔,比如教堂、大会堂、大堂、大厅等;有的空间张狂个性,比如音乐厅、艺术停;有的需要空间需要狭小静谧,比如茶室;有的空间闭塞、压抑,比如看守室等

从遮罩效果上分:封闭式、全开方式、半开放式、局部构造装饰式等
造型上分:平顶、悬浮顶、回型灯槽吊顶、”L“型灯槽吊顶、直线型、折线型、曲线型、弧线型、单眼皮吊顶、叠级吊顶、三角形顶、梯形顶、”入“字型、⚪型、方形、”田“字格、内外圆、内外框、椭圆形、多边形、欧式弧形灯槽、四分之一圆角灯槽、四分之一椭圆灯槽、四分之一圆灯槽边、斜面顶、曲面顶等做法,还有通过北美草原风格演绎构造式梁做法、东南亚风格演绎的藤编、竹编做法,也有中式平民园林做法和中式宫殿斗拱做法。各种做法层次不穷、往往都是一种或者多种做法的穿插结合。

常用材料有:涂料、木饰面、不锈钢、镜子、墙制、墙布、金箔、银波、竹编、藤编、纱布、丝网、铁艺、灯箱、广告字、灯膜、贴膜、铁皮、地板等;还有木装饰构件、石膏构件、PU、GRG等预制或者定制构件的运用。

暖通点位:空调、新风(出风靠近人常停留侧,靠冷气损失)、暖风机(一般在淋浴房外、靠近淋浴房不到顶隔断处)、凉霸(出风方向能吹到炒菜位置)、换气、排烟、补风、挡烟垂壁等。
消防点位:喷淋、烟感、广播、气体探测、感温探测。
影音点位:音响、功放、喇叭、投影、电视等。
安防点位:监控、防入侵、范围锁定看管、临边监测防坠等。
检修口:用于暖通设备、灯带驱动等设备设施检修。检修口设置常规标准:①不上人检修口一般为350*350mm,上人检修口一般600*600mm,只需要伸手简单操作的检修口60-100mm即可,确保检修可操作性、距离不过长,不能被管线、梁等阻挡作,检修配件进出、安装方便;②空调检修口一般设备长度+350,靠近冷媒管与内接接头侧(面向送风口右手边);③新风检修口一般为350*350,靠近新风滤片门一侧;④防排烟阀检修口为350*350,靠近防排烟阀处;⑤灯带驱检修一般预留灯槽可固定驱动位置,也可预留在检修口、凉霸、浴霸附近便于更换,考虑驱动出线到灯带距离;⑥顶内预留其他设备的检修口、及设备电源插座安装等,要确保可操作性。尽量减少预留检修口,以及后期维护的麻烦。
窗帘盒电机、电动衣架、衣柜鞋柜电源及信号线预留。
灯具、感应开关点位:灯光设计不要直射人,感应开关要满足感应范围及控制逻辑。
应急疏散照明、指示牌点位。
其他需预留设备电源及信号点位、弱电、网络、信息等。

造型及材料与空间布局、空间尺度、空间风格呼应。宜按照功能区域布置吊顶。如狭小空间无氛围要求不易过高、大空间不易过低、不易过暗。保持空间氛围整体协调一致性。
综合点位中心尺寸与外形轮廓尺寸的排布差异。
石膏灯、磁吸轨道灯的预埋、线路组装归纳、设备安装是否影响吊顶及安装完善程度。
细节收口处理:不同基层做法之间衔接处理、不同饰面材料衔接收口处理、不同高度收口处理、与墙面交界收口处理(墙缝、顶缝、卫生间先墙面后顶面),异形造型施工的可行性效果及收口处理,面材安装稳固。工艺缝处理,一种是装饰作用、美观、分割造型等,另一种将易开裂、起翘的阳角或者平面转为阴角。


轻钢龙骨吊顶剖面图
轻钢龙骨吊顶剖面
厨卫钢架反支撑形式特殊
厨房卫生间区域防水施工前必须完成同区域下层顶面吊杆安装,或完成吊杆点位结构板钻孔作业。豪宅项目厨房卫生间吊顶不允许在结构板上打吊杆,应采用钢架反支撑形式特殊处理(详节点图)。
优化前做法,石膏线条与石膏板搭接过短容易开裂
优化后做法,增加石膏线条与石膏板搭接长度避免开裂
但是GRG是腻子直接补缝刷漆,石膏板是批刮腻子刷漆,如果能在GRG与石膏板之间做工艺缝就更完美。
GRG和石膏板之间做工艺风
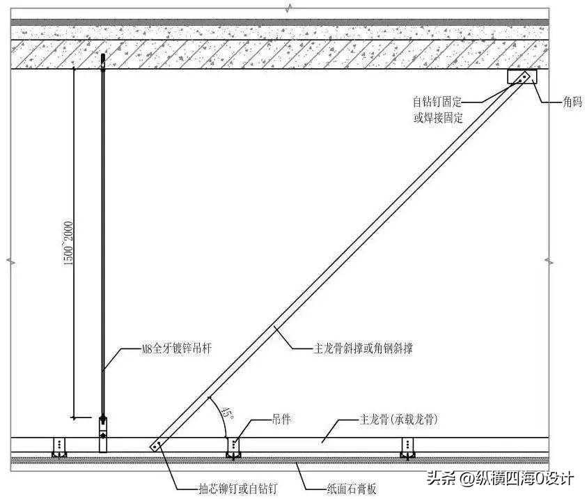
8.吊顶结构加固及吊装物加固做法
①反支撑构造工艺:
A.适用于吊顶到楼板高度在1.5-2.0m;
°斜支撑2m一根,从中心呈梅花形散开支撑主龙骨,不同直线、不同方向”八“字形错开分布。
C.反支撑可用主龙骨或者角钢。
反支撑做法
②倒三角反支撑构造工艺:
A.适用于吊顶到楼板高度在1.5-2.0m;
°斜支撑2m一根,从中心呈梅花形散开支撑主龙骨,不同直线、不同方向”八“字形错开分布。
C.反支撑可用主龙骨或者角钢。
③主龙骨拉结反支撑构造工艺:
A.适用于吊顶到楼板高度在1.5-3.0m;
B.吊筋1/2处加横撑主龙骨;
C.每隔一个吊筋穿过横撑主龙骨打孔并上下螺母固定;
D.在横撑龙骨上做倒三角支撑结构。
④吊杆通长拉结法:
A.适用于吊顶到楼板高度在1.5-3.0m;
B.斜拉钢筋每隔两倍主龙骨间距设置;
C.∅8钢筋可用M8全牙吊杆替代,但焊接处需做防锈处理。
反向支撑吊顶详图-吊杆通长拉结法
⑤钢架转换层做法:
A..适用于吊顶到楼板高度大于3.om;
B.转换层的吊杆采用角钢、槽钢等刚性构件,杆端与楼板底面可靠连接。
C.为保障转换层的稳定,应有斜向撑与混凝土梁侧、墙侧可靠连接,纵横向均应设置。无法与梁侧、墙侧连接时,应在吊杆间设置交叉拉杆,纵横向均应设置。
D.需做防锈处理。
⑥吊杆+钢架转换层做法:
A.反支撑/转换层的做法就是为了让吊杆的长度不大于1500mm,那么转换层的做法也可以做成:吊杆+角钢+吊杆,这种做法相对全钢架转换层更节约成本,实际应用中更灵活
⑦吊装物体加固
灯具重量超过3kg的应安装后置埋件并做加固措施,严禁安装在木楔或吊顶龙骨上;具体方法如下:
A.灯具自重≤50kg时,采用双层18mm木工板加膨胀螺栓四点固定的方式连接在结构板(梁)上;(详见节点1)
节意图1:保压施点1:吊重≤5施工高压管连接0kg灯具加固方接方式方式
B.灯具自重≤150kg时,采用M12化学锚栓在结构板(梁)上设置挂钩,采用L60*5镀锌角钢制作;(详见节点2)
点2:50kg<吊重≤150kg灯具加固方式
C.当灯具自重>150kg时,应由技术部门进行受力计算,确定安装方案后方可实施;
吊顶安装悬挂物:
考虑动荷载
X<1KG直接石膏板开孔安装,
1KG≤X≤3KG做加强次骨,
3KG≤X≤60KG做专用膨胀栓吊筋受力,
60KG≤X≤120KG做专用角铁受力,
X>120KG做专用加固角马
第八节:关于空调系统出风方式有:顶面出风、墙面出风、地面出风。
我们这里主要讨论以下顶面出风的几个问题:
风口通风尺寸需要满足,内机风口尽量对正装饰风口,装饰风口内部刷黑,需要双层过滤网,风口(散流器)有方形、圆形、长条形单层百叶、双层百叶多种形式,材质有铝合金、ABS、木制等。
双向气流机器装饰形送回风方式有:侧送下回、(前)侧送(后)侧回、下送侧回、下送下回(送回风间距1.5m以上)、同侧送回(送回风间距1.5m以上)、吊顶回风。
避免送回风短路,送回风在同一面时间距1.5m以上。
送风避免被造型阻挡不能扩散开。
送风不要对着床头直吹,可以风口45°朝墙吹。
如果没有冷凝水排水泵确保接水盘位于冷凝水排水系统中最高位,冷凝水可以正常外排
在和甲方及其他专业沟通中,注意靠风口厚度、面部尺寸、颈部尺寸、软管。
内机前后要预留50mm接软管上下调动出风口位置或者走线、走冷媒管空间,以及管道保温层厚度,下送侧回送风送管下弯距离至少150mm宽(不含),同侧送回注意内机后方风管拐弯的空间。
考虑好检修位置,面向内机送风右手边。
侧送下回做法节点
(前)侧送(后)侧回做法节点
下送侧回做法节点
下送下回平面
下送侧回做法平面
同侧送回(送回风间距1.5m以上)
主卧为吊顶回风(利用吊顶空腔做回风管)
天花设计思路原则:型正为首,光正为重;
确保设备功能,点位横平竖直、居中等距是常规,明暗(明装点位与隐藏式、中心尺寸定位与物体边缘定位区别)界线分清。
1.前期工作:
①方案理顺、家具定位准确、墙面完成面线完成、立面造型收口准确;
②明确造型布置及材质(效果图、参考图、意向构想草图);
③明确灯具布置方案(主要照明、次要照明、环境光);
④收集整合各专业提资及技术规范标准要求(建筑、结构、预埋孔洞、幕墙、消防、暖通、电气、给排水、影音、智能等)。
2.天花排布:
①根据平面确定造型分割排列为造型主中心轴线;
②构建造型排布方式、模数、造型次中心轴线;
③根据平面及造型布置灯光为点位主轴线;
④初排综合点位为点位次轴线,以功能为主、均匀分布为次,明显物为主、隐蔽物为辅,以点位边缘间距为主、兼顾点位中心间距;
⑤复验提资及综合点位精排布;
⑥标注、编号;
⑦复查、各专业联合审图、报审。
感谢您的耐心观看,请留下您的宝贵意见~~~
后面附上几张喜欢的图片





